
Denne Skottbenken blei funnet av Martin Eriksen og Trygve Lia på Suigard Tveiten i Grongedal (Haukeli). Eigar av benken er Svein Henry Ekre.
Då benken blei funne, hang den på ytterveggen av eit middelalderloft og såg ut til å ha hengt der ein god stund. Middelalderloftet har vært malt og det har dei gjort uten å ta ned skottbenken frå veggen, så då har den også fått seg eit strøk med brunmaling. Dei har til og med gjort seg flid og mala inn mellom langborda. Når dei tok benken ned kunne ein sjå avtrykk av benken på veggen. Eit slikt avtrykk kunne vel i seg sjølv tiltrekt skodelystne skottbenktilhengarar.


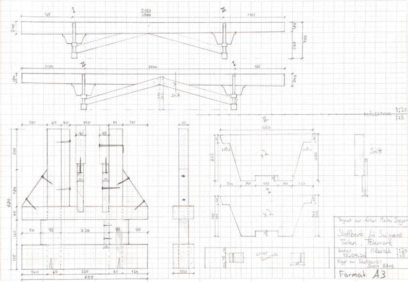
Benken er kring 5m lang og rundt 70cm høg. Den er laga i furu, (muligens noko gran?) og er relativt enkelt lagd. Det er brukt ein god del klippspiker når den er blitt lagd, noko som også tyder på at denne benken kanskje er av nyare dato. Alder på benken er ukjend.

Bukkane er i hovedsak laga av to tverremner og to ståande emner som er tappa gjennom dei tverrgåande. Det er gjennomgåande tappar også i i bunnemnet der dei i tillegg har slått inn ein kile frå undersida.

Eg ser for meg at det har vært ein kile som har blitt brukt for å klemme saman langborda. Ein kan sjå spor etter ein slik kile på eine bukken, men ellers ingen tydlig bruksslitasje etter ein slik kile.

Benken har også blitt stiva av med to skråstilte bord. Desse er gjort smalare der dei ligg ann mot midten av langborda.
Nedanfor er teikning og mål av benken. Eg har tatt meg friheit til å forenkle mål og nokon av delane då det var ein del variasjon i tjukkleik og lengde.



Thanks for shharing this
LikarLikar