
Berre for nokre år sidan var det ikkje funne skottbenk i Valdres. Eg var i kontakt med bygningsvernrådgjevar Odd Arne Rudi på museet på Fagernes, sidan han er mykje rundt på gardar i Valdres. Kanskje hadde Rudi kome over ein slik benk på nokon av sine mange synfaringar? Han kunne opplyse om at skottbenk var ikkje noko han hadde sett i dalen. Nedtur. Vi vart enige om at han skulle halde ein ekstra utkikk etter ein slik benk. Det gjekk vel eit år, innan eg tok telefonen på ny og høyrde om han hadde kome over noko som kunne likne ein skottbenk, men svaret var det same som sist.
Dagen etter denne telefonen, ringer Rudi meg tilbake med nyheita om at han har funne ein skottbenk i Ulnes. Skøtbenken var då reoppdaga i Valdres.
Seinare fekk eg informasjon om ein «trefoting» i Etnedalen. Til alt overmål fann Rudi også benken som denne bloggposten handlar om. Arkivet til Valdres Folkemuseum er enormt stort, mykje befinn seg i samlinga. Klemt mellom eit treskeverk, ei rekkje spissledar og ein laftevegg vart benken oppdaga. Benken har ikkje noko registreringsnummer og var difor ikkje å finne i det digitale arkivet.

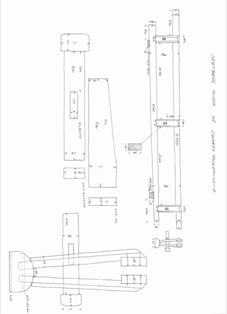
Benken er «enkel» i utforminga. Det er ein kløyvd stokk som dannar botn og vekta i benken. «Klypene» er tappa ned i stokken, omlag 4’’. Det er tappa hol i klypene, for å gi plass til strekkfiskemne, som skal yte press på klypene. Strekkfiskane som går gjennom klypene, er tilverka i bjørk.


Benken manglar føter under halvkløyvningen. Dette ser ein ut frå merkjer under.

Føtene er låste i eit kilespor under halvkløyvningen. I tillegg er dei spikra frå undersida av føtene og opp i halvkløyvningen. Dette kan vitne om at føtene ikkje har vore særs grove. Vidare er benken mellom 720 og 780 mm høg, målt utan føter. Skottbenkane som er registrert rundt om i landet, varierar mellom 760 – 850 mm. Der eit snitt kan vera om lag 780 mm (kjelde: Roald Renmælmo). Dette kan tyde på at føtene kan vera ein stad mellom 1-2,5’’, om ein tek utgangspunkt i den høgaste delen av benken. Om benken har vore jamnhøg nokon gong er eg usikker på.


Ved fyrste augekast, kan det synsast som kilefunksjon er særs låg i forhold til toppen av borda. Men, skulle ein få plass til bord med 35 cm breidde, kan det ikkje utformast anleis.

Eg har brukt nokre dagar på å laga ein kopi av denne benken. Benken er tilsynelatande enkel i utforming, men eg vart overraska over kor mykje arbeid som ligg bak ein slik benk. Sidan ein har ein halvkløyvning i botn, får ein ingen rette flater å gå ut i frå. Eg valde difor å bruke verkstadgolvet under kløyvningen som referanse. Eg lyfta stokken opp med lik avstand til golvet i båe, ender og nytta ein «referansestav» frå golvet og opp. Dette gjorde det enklare å finne lengda på klypene og lengda på kor mykje av klypene som skulle fellast ned i stokken.

Eit problem ein kan støyte på i ein slik prosess, er utvalget ein har av materialar. Då eg fann ut at benken er utforma med lunn/halvkløyvning i botn, vart det litt hektisk. Materialane nytta i ein slik benk bør vera nokon lunde tørre. Mykje halvkløyvning hadde eg ikkje på lager og måtte difor til skogs. Ei gran som såg relativt tørr ut på rot, vart vald. Det var ei utfordring, då ho og måtte ha rette dimensjonen. Før eg felde treet sjekka eg om det var rettvokst, noko treet heldigvis var.

Eg valde å kløyve lunnen på sag. Sjølv om originallunnen sannsynlegvis vart kløyvd med kilar og sidan telgd. Tidlegare hadde eg kløyvd opp ein del 2-2,5’’ furu, som fint kunne nyttast til klyper. Ferdige klyper skulle halde om lag 2’’ tjukke og 7-7 1/4’’ breidde.

På originalbenken var klypene tilverka forholdsvis grovt med øks. Noko eg også prøvde meg på. Emne til klyper og halvkløyvningen var ferdige kvar for seg, og moneringa kunne ta til. Midten på halvkløyvningen vart merka i båe endar og sotsnorslag danna ei referanseline eg kunne jobbe ut i frå.


Det var ikkje heilt enkelt å forstå originalen og funksjonen på klypene. Benken har stått lenge og veden har krope ein del. Bevegelegheita på klypene var difor særs begrensa. Om benken var konstruert med bevegelege klyper berre på eine sida, fann eg difor ikkje noko sikkert svar på. Likevel valde eg å montere desse fast på sida ein står og høvlar, samt at eg laga tapphola meir romme i botn på andre sida. Klypa nærast kilen har difor evna til å bevege seg. Klypene er plugga med tretappar gjennom halvkløyvningen. To pluggar på kvar klype med diameter på om lag 3/4’’. Hola ser ut til å vera bora vassrett inn, og har same diameter på båe sider. Sidan benken ikkje kan demonterast, er det vanskeleg å seie om dette er bora med spiralbor heilt gjennom lunnen, eller om det er bora inn med navar frå båe sider.

Eg har enno ikkje montert desse pluggane sidan halvkløyvningen er noko rå. Eg plukkar difor ut klypene og justerer hola og pluggar når halvkløyvningen har tørka. Håpet er at den ikkje går seg bort på vegen mot eit tørrare liv. Vidare har eg heller ikkje hogge inn føtene under halvkløyvningen. Dette gjer eg når emnet har tørka, då føtene truleg vil flukte betre over tid.

Strekkfiskane på originalbenken er tilverka i bjørk. Det ser ut til at emnet er henta frå rundtvyrkje som held om lag dimensjonen som var ynskt, om lag 4’’. Ny utfordring! Eg fann likevel ei bjørk eg hadde felt for eit år sidan. Den var ikkje heilt tørr, men tørr nok til at krympen ikkje blir stor. Også desse emna er tilverka med øks og litt sag. Eg prøvde difor å gjera utforminga lik, med same type verktøy.


Eg er litt usikker på om kilen på skottbenken er original. Dei får noko hard medfart ved bruk og er truleg bytta ut i nyare kilar. Eg laga mine kilar noko lenger enn referansa. Noko som vil kunne klemme borda på skottbenken meir i saman.

Så var det borda som skulle på plass i klypene. Sidan klypene står tettare i halvkløyvningen enn dei gjer på borda, må borda fellast inn med ein vinkel i klypene.

Eg trur det er gjort på same viset på originalen. Det er vanskeleg å sjå utan å måtte demontere borda. Eg gjordet det slik for ein annan grunn òg, nemeleg fordi eg ikkje hadde topp vyrkje til bord. Eg laut kjøpe bord til dette, men desse hadde berre rett lengde og var brukbart rette. Feilen er at borda har store kvistar der høvelen skal jobbe, og dette gjer det vanskelegare å halde toppen på benken rett og sjølve rettearbeidet vanskeleg. Eg ynskjer difor å skifte ut desse borda ved eit seinare høve, då er det enklare med jamn innfelling i borda og ikkje skrå.




One thought on “Skøtbenk frå Valdres på Valdres folkemuseum”